Sheepcote Street

Asking Price £365,000

Overview

2 Bedroom Flat for sale in Sheepcote Street
1 2 2

A beautifully presented two-bedroom two-bathroom top floor apartment with dual aspect overlooking the canal and courtyard. This apartment is located in the original conversion of King Edwards Wharf, a Grade II listed building, and benefits from secure allocated parking, balcony and 24 hour concierge service.

Key Features:

  • Two bedroom apartment Grade II Listed Building Two bathrooms Top floor Secure allocated parking Canal views Balcony Large open-plan living area Central location 24 hour Concierge service Mezzanine...


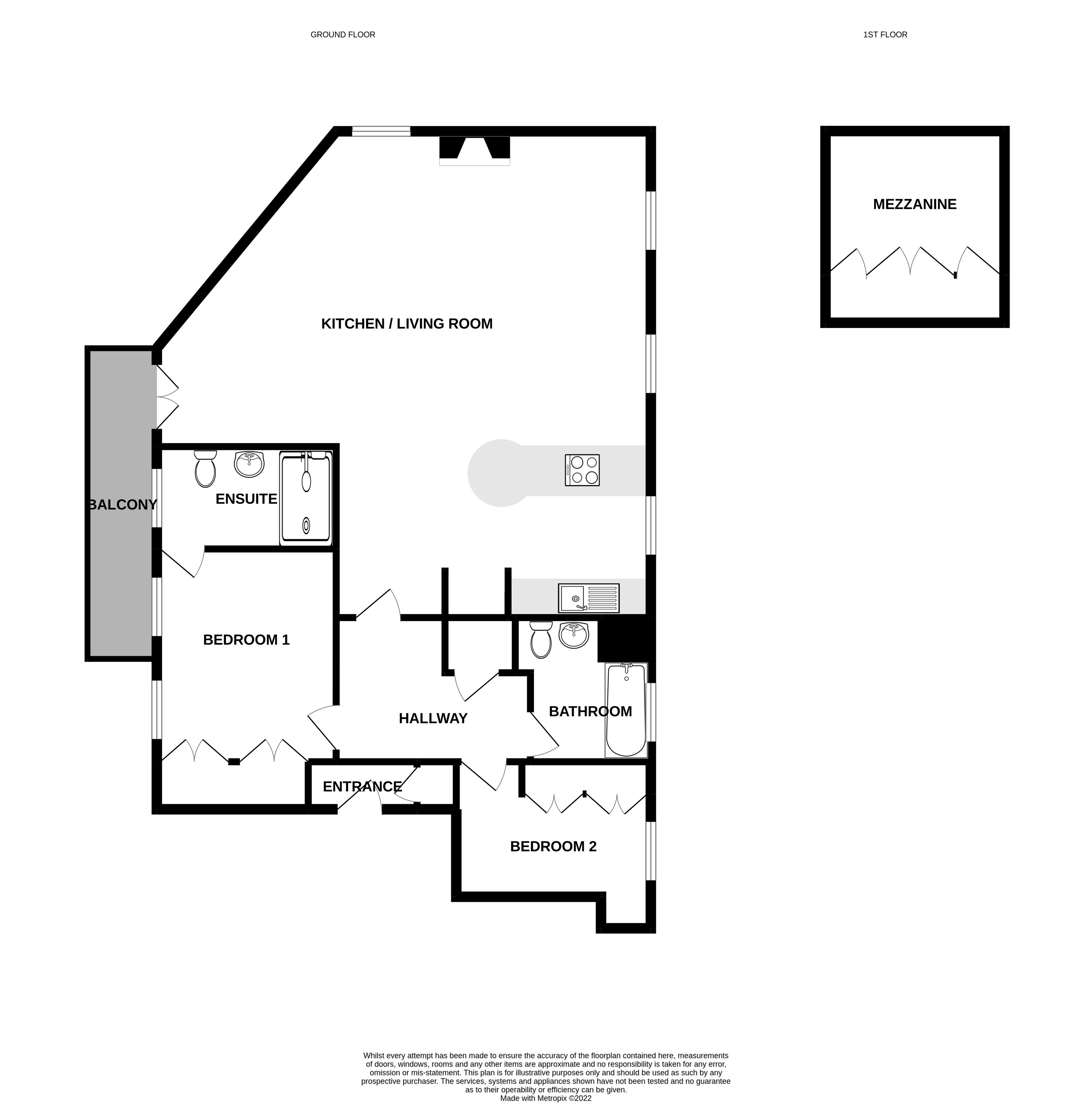
HALLWAY 10'11"x8'1" (3.33mx2.46m)

With two storage cupboards, wooden flooring and doors to all rooms.

OPEN PLAN LIVING AREA / FITTED KITCHEN 27'9"x27'4" (8.46mx8.33m)

With wooden flooring, three sash windows to the front elevation providing canal views, french door leading to the baclony and sash window over looking the courtyard to the side elevation. Modern fitted kitchen with integrated appliances including washing machine, fridge freezer, electric oven and hob. There are also gas radiators and painted exposed brickwork and beams.

MASTER BEDROOM 10'1"x11'11" (3.07mx3.63m)

Carpet flooring with sash windows to the side overlooking the courtyard, built in dou...

Read more

Important Information

  • This is a Leasehold property.
  • The annual cost for the ground rent on this property is £150
  • The annual service charges for this property is £3400
  • This Council Tax band for this property is: F
  • EPC Rating is D

epc

Sherborne Street, Birmingham

3 Bedroom Penthouse

Sherborne Street, Birmingham

Cornwall Street, Birmingham

2 Bedroom Flat

Cornwall Street, Birmingham

Warstone Mews, Birmingham

Retail Property (High Street)

Warstone Mews, Birmingham

Mason Way, Birmingham

2 Bedroom Penthouse

Mason Way, Birmingham

Tenby Street, Birmingham

2 Bedroom Terraced House

Tenby Street, Birmingham

Longleat Avenue, Birmingham

3 Bedroom Penthouse

Longleat Avenue, Birmingham


Update Cookies Preferences